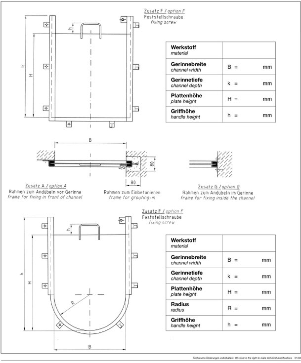
F05 Steckschieber rechteckige bzw. halbrunde Ausführung

Beschreibung:


Steckschieber zum Absperren von offenen Gerinnen, 3-seitig dichtend.

 

Rahmen aus Sonderprofil, zum bündigen Einbau in Gerinne, mit Mauerankern zum Einbetonieren, mit beidseitiger, austauschbarer, abwasserbeständiger Gummidichtung, mit nutfreiem Sohlendurchgang.

Schiebertafel aus Edelstahlblech, mit Handgriff.

 

Steckschieber aus Edelstahl, unter Schutzgas geschweißt, vollständig gebeizt und passiviert.

 

Steckschieber sind nach Ihren Plänen und Anforderungen auch in Sonderanfertigung für unterschiedliche Gerinneformen lieferbar.

 

Zusätze :

 

 A   Rahmen zum Andübeln vor Gerinneauslauf, einschl. Befestigungsmaterial und Dichtungsband

 

 G   Rahmen zum Andübeln im Gerinne, einschl. Befestigungsmaterial

 
 R   zusätzlicher Rahmen, zum Wechseln der Schiebertafel


 F   Feststellschraube, zum Fixieren der Schiebertafel